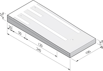
Plateaudrempels 240 sinus 8 cm
De getoonde tekeningen zijn illustratief.
Hieraan kunnen geen rechten worden ontleend Modeltekening
Hieraan kunnen geen rechten worden ontleend Modeltekening
Uitvoeringen
| afmetingen (cm) | gewicht (kg) |
|---|---|
| 14/22x50x2401, 2, 3 | 519,00 |
| 14/22x100x2401, 2, 3 | 1.037,00 |
- 1 Hijsvoorziening: 2x kogelkopanker 1.
- 2 Hijsvoorziening: 3x kogelkopanker 1.
- 3 3T.
- 4 Met slijtvaste, witte betonmarkering.
Toepassingen
Textuur
Kleuren
Zelfverdichtend beton grijs
Zelfverdichtend beton zwart
Lavaro zwart 100
Verwerking
Toe te passen als verkeersplateau sinus 8 cm voor 50 km/h-zones conform CROW-publicatie 344. De plateaudrempels zijn standaard berekend op Verkeersklasse 45. Desgewenst kunnen de plateaudrempels op een hogere verkeersklasse geconstrueerd worden. Inclusief witte betonnen taludmarkering, slijtvast.
Dikte legbed bedraagt minimaal 10 cm.
• Zandmediaan (Mz) 210, waardoor het zand te karakteriseren is als 'grof'.
• Gelijkmatigheidscoëfficiënt (Cu) 2 (Deze waarde karakteriseert de spreiding in de korrelverdeling)
Voorbeeld van een zeefanalyse volgens Standaard RAW bepalingen, proef 11. De gelijkmatigheidscoëfficiënt (Cu) en de zandmediaan (Mz) kunnen hiermee bepaald worden. Ook kan beoordeeld worden of het zand geschikt is voor een permanente draineerfunctie (zie figuur 3).
• De voeg vullen met voegzand tot 70 mm van de bovenkant van het verkeersplateau-element;
• Een rugvulling van polyethyleenschuim (geslotencellig) aanbrengen;
• Controleren dat de hechtvlakken schoon en droog zijn;
• De hechtvlakken van de kit voorbehandelen met een primer voor betere hechting;
• Na droging van de primer de voeg vullen met een één-component polyurethaan elastische kit in de juiste breedte - diepte verhouding;
• De kit zodanig aanbrengen dat er een directe hechting plaatsvindt;
• Kit afwerken met een sterk verdunde synthetische pH neutrale zeep met behulp van een passende houten spatel.
Kenmerken verkeersplateau
De verkeersplateau-elementen zijn constructief berekend op verkeersbelastingen. Hier kan alleen aan worden voldaan indien ook het legbed en de fundatie aan de juiste voorwaarden voldoen. Het vakkundig leggen, de voegbreedte, voegvulling en goede waterhuishouding zijn hierbij van groot belang.Stapelen
De verkeersplateau-elementen stapelen op een vlakke en stabiele ondergrond voorzien van drie steunpunten met behulp van stapelstenen (betontegels of klinkers van gelijke dikte). Zorg dat het onderste element vrij blijft van de ondergrond. De stapelstenen dienen loodrecht onder elkaar te worden gelegd (zie figuur 1). Elementen dienen één voor één opgestapeld te worden tot een hoogte van maximaal 4 stuks.Ondergrond / fundatie / legbed
De verkeersplateau-elementen dienen op een legbed met voldoende draagkracht gelegd te worden. De opbouw van de lagen moet zodanig zijn dat een gelijkmatig zakkings- en zettingsgedrag mag worden verwacht. Voor fundatieadvies is het aan te bevelen een adviesbureau te raadplegen dat gespecialiseerd is in grondmechanica (figuur 2).Draagkrachteis
Minimaal beddinggetal/constante is 0,07 N/mm3 (ca. 15% CBR)Dikte legbed bedraagt minimaal 10 cm.
Zandadvies
• Zand moet voldoen aan de omschrijving: "Zand met een permanente draineerfunctie". (Standaard RAW bepalingen, art. 22.06.02);• Zandmediaan (Mz) 210, waardoor het zand te karakteriseren is als 'grof'.
• Gelijkmatigheidscoëfficiënt (Cu) 2 (Deze waarde karakteriseert de spreiding in de korrelverdeling)
Voorbeeld van een zeefanalyse volgens Standaard RAW bepalingen, proef 11. De gelijkmatigheidscoëfficiënt (Cu) en de zandmediaan (Mz) kunnen hiermee bepaald worden. Ook kan beoordeeld worden of het zand geschikt is voor een permanente draineerfunctie (zie figuur 3).
Verdichtingsadvies
Het advies is om op een diepte van minder dan 1,0 meter beneden vloerniveau een verdichtingsgraad (proctorwaarde) van minimaal 95% en een gemiddelde waarde van 98% te halen. De verkeersplateau-elementen kunnen zich dan stabiel zetten in het legbed.Waterhuishouding en ondergrond
Bij verzadiging van de ondergrond met water neemt de draagkracht sterk af. Deze wordt bovendien vaak nadelig beïnvloed als vorst en daarna dooi optreden. De grondwaterstand moet daarom voldoende diep onder het vloeroppervlak blijven. Advies is een maximale waterstand van 0,5 meter onder de verkeersplateau-elementen te handhaven. Zorg voor een goede afwatering en drainage direct voor het verkeersplateau.Hijsvoorzieningen
De verkeersplateau-elementen dienen opgenomen en gelegd te worden met behulp van een evenaar en hijsstroppen geschikt voor kogelkopankers. Hiervan bevinden zich 3 stuks aan de bovenzijde van het verkeersplateau-element. Bij verkeersplateau-elementen zonder hijsvoorziening is het advies vacuümapparatuur met bijpassende rubbers te gebruiken.Plaatsing
De verkeersplateau-elementen zowel in langs- als ook in dwarsrichting goed opsluiten.Verwerking in asfaltwegen
De randen tussen de verkeersplateau-elementen en het asfalt worden afgedicht door een bitumineuze voegband aan te brengen. Wij adviseren de onderlinge voegen af te dichten met een elastische kit om indringing van water te voorkomen.• De voeg vullen met voegzand tot 70 mm van de bovenkant van het verkeersplateau-element;
• Een rugvulling van polyethyleenschuim (geslotencellig) aanbrengen;
• Controleren dat de hechtvlakken schoon en droog zijn;
• De hechtvlakken van de kit voorbehandelen met een primer voor betere hechting;
• Na droging van de primer de voeg vullen met een één-component polyurethaan elastische kit in de juiste breedte - diepte verhouding;
• De kit zodanig aanbrengen dat er een directe hechting plaatsvindt;
• Kit afwerken met een sterk verdunde synthetische pH neutrale zeep met behulp van een passende houten spatel.
Kwaliteit
